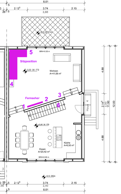
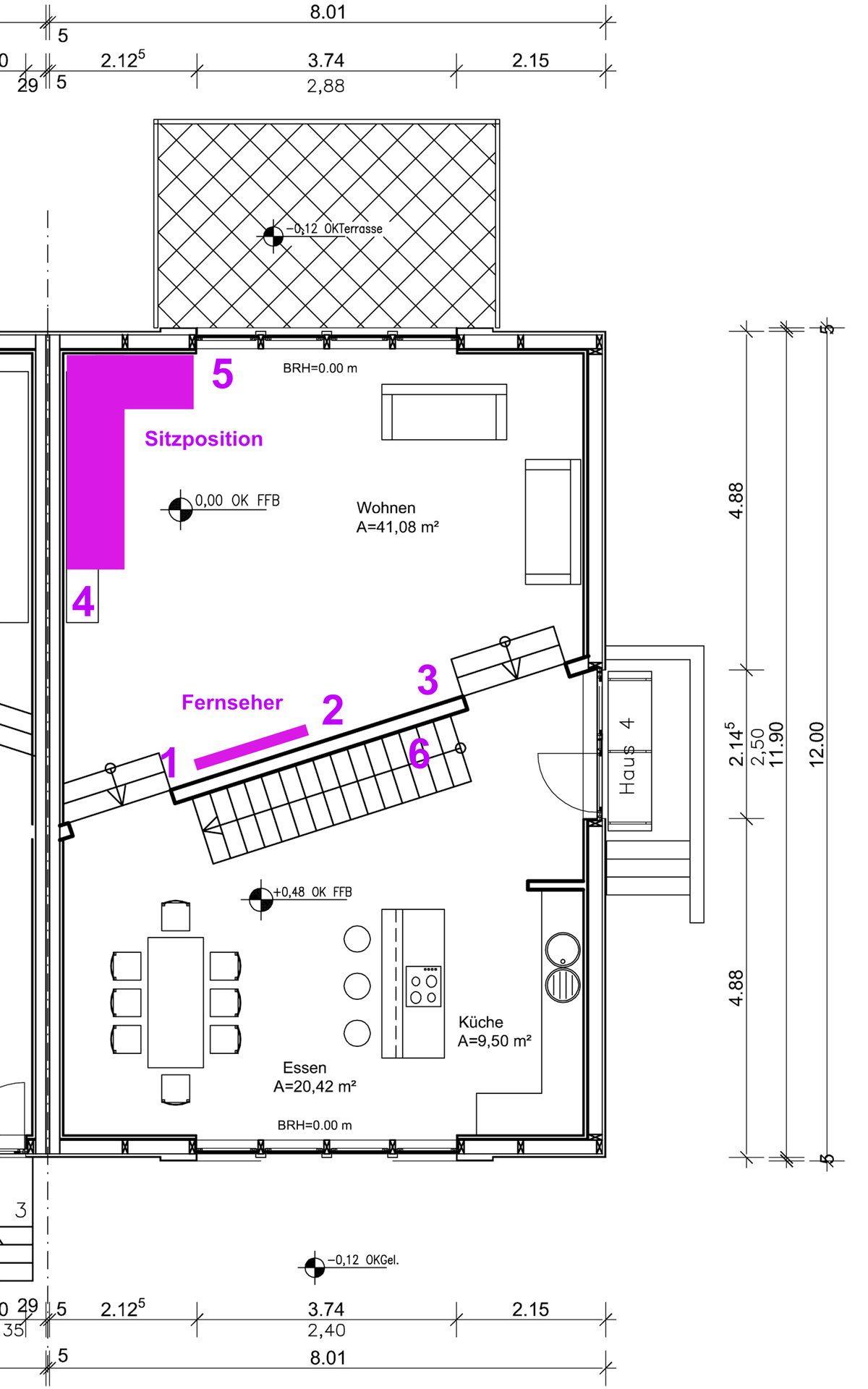
Auszug aus dem Forum:
"Hallo,ich habe die Frage auch schon im Thread zur Erfahrung \'Focal Dimension\' geposted, aber ich glaube, hier ist sie besser aufgehoben.Ich besitze nun also diese tolle Focal Dimension Soundbar, habe wenig Ahnung von Hifi und möchte gerne der FD noch..."» Weiterlesen: Sub zur Soundbar im hohen, offenen Raum
0 Kommentare
Anzeige
Diskussion zum Bild:
Was möchtest du tun?
Rechtlicher Hinweis
Die Verantwortung der hier angezeigten Bilder liegt beim einstellenden Nutzer.
Hifi-Forum macht sich die Inhalte nicht zu eigen und übernimmt keine Verantwortung.