Auszug aus dem Forum:
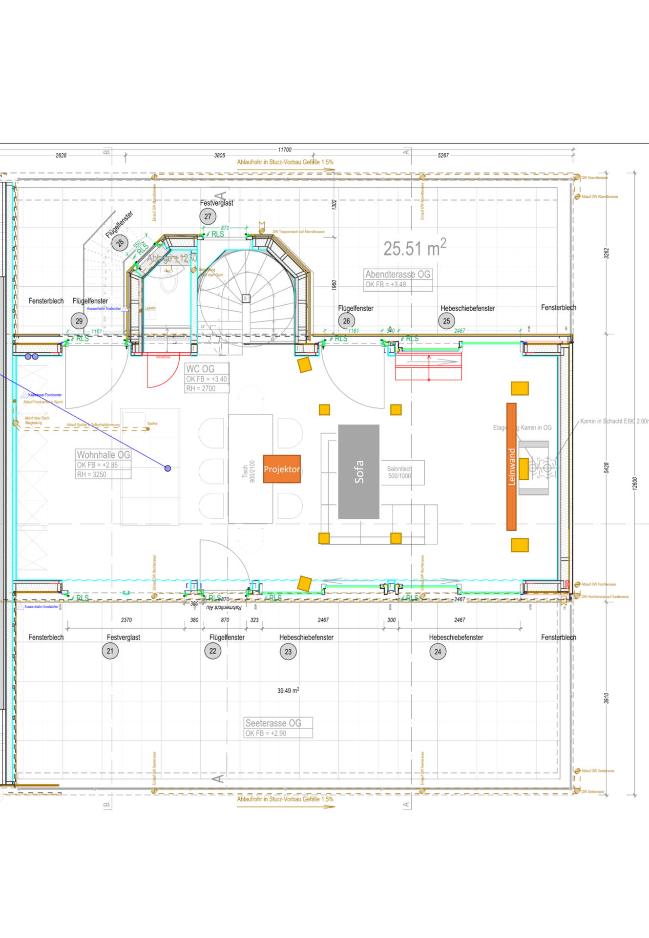
"Geschätzte ForistenWir sind zurzeit daran unser Einfamilienhaus zu bauen. Dabei möchten wir im Wohn-/Essbereich (Attika-Geschoss) ein Heimkino (sofern man dies in dieser Konstellation überhaupt so nennen kann 😊) einrichten/vorsehen.Es ginge..."» Weiterlesen: Heimkino für 50m2 Wohnbereich (Neubau)
0 Kommentare
Anzeige
Diskussion zum Bild:
Was möchtest du tun?
Rechtlicher Hinweis
Die Verantwortung der hier angezeigten Bilder liegt beim einstellenden Nutzer.
Hifi-Forum macht sich die Inhalte nicht zu eigen und übernimmt keine Verantwortung.