Auszug aus dem Forum:
"Liebes Forum,das bisherige Stöbern im Forum war zwar informativ, jedoch für den einfachen Anwender ein wenig überfordernd und teilweise nicht unserem Bedarf angepasst, daher versuche ich es über den direkten Weg. Wir brauchen vom Fernseher bis zur Anlage..."» Weiterlesen: alles neu
Anzeige
Diskussion zum Bild:
Was möchtest du tun?
Rechtlicher Hinweis
Die Verantwortung der hier angezeigten Bilder liegt beim einstellenden Nutzer.
Hifi-Forum macht sich die Inhalte nicht zu eigen und übernimmt keine Verantwortung.
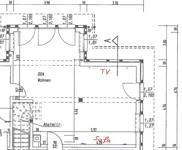
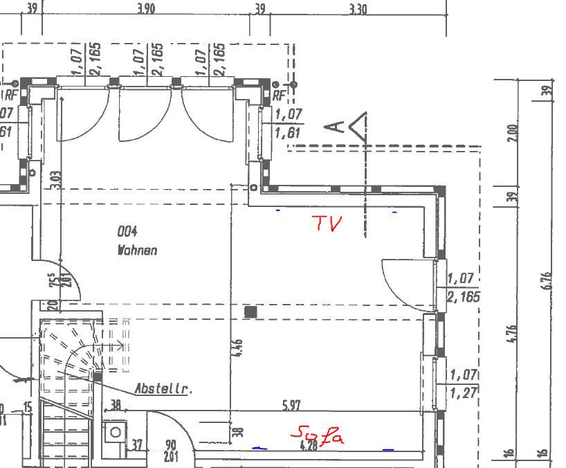
Die blauen Punkte sind die Boxenkabel in der Wand :-)
nickiolas (Besitzer) | 04.02.15 um 11:39 Uhr