Auszug aus dem Forum:
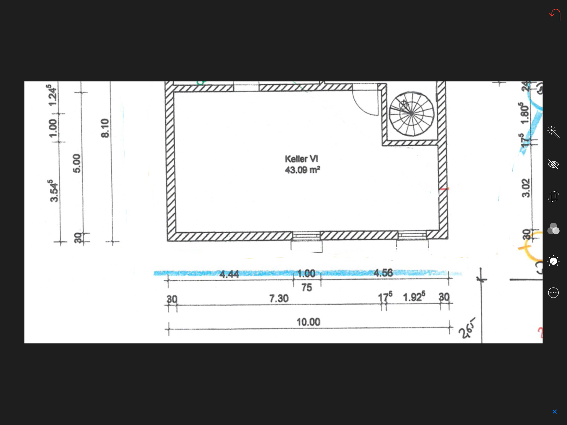
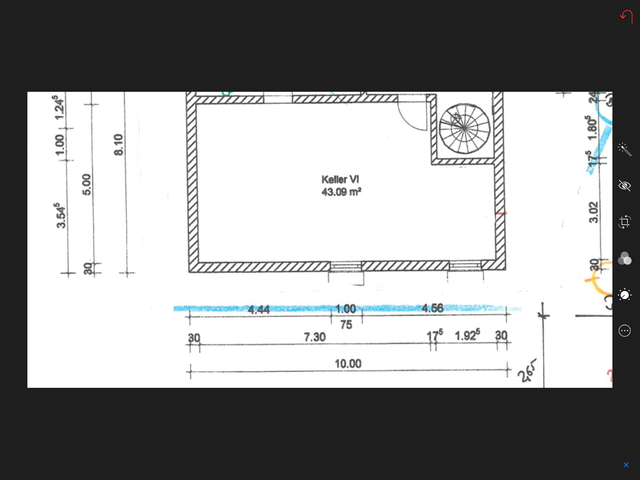
"Hallo Leute Ich bin neu hier und hoffe das ich meinen Beitrag im richtigen Bereich veröffentliche.Wenn ich es falsch poste, dann entschuldige ich mich schon mal vorab. Ich möchte gerne im Keller ringsrum einen Trockenbau-Kasten machen (mit direkter+indirekter..."» Weiterlesen: Musikanlage im Partyraum
0 Kommentare
Anzeige
Diskussion zum Bild:
Was möchtest du tun?
Rechtlicher Hinweis
Die Verantwortung der hier angezeigten Bilder liegt beim einstellenden Nutzer.
Hifi-Forum macht sich die Inhalte nicht zu eigen und übernimmt keine Verantwortung.