Auszug aus dem Forum:
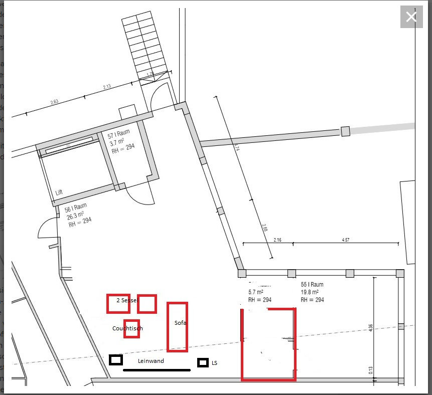
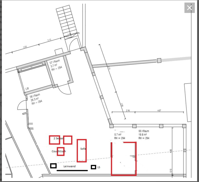
"Hi,sorry für die etwas laienhafte Frage, aber ich werde mir für die finale Umsetzung halbwegs sachkundige Unterstützung holen. Richte gerade eine neue Wohnung ein und stehe zwischen zwei Umsetzungsvarianten - die Hifi-Anlage mit KEF LS50 entweder an die am Foto..."» Weiterlesen: Kurze Frage zur Raumakustik Fabrikloft
0 Kommentare
Anzeige
Diskussion zum Bild:
Was möchtest du tun?
Rechtlicher Hinweis
Die Verantwortung der hier angezeigten Bilder liegt beim einstellenden Nutzer.
Hifi-Forum macht sich die Inhalte nicht zu eigen und übernimmt keine Verantwortung.