Auszug aus dem Forum:
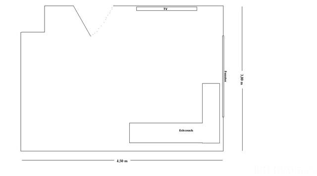
"Hallo!Habe leider nur ein relativ kleines Wohnzimmer und bin daher bei der Aufstellung der Möbel relativ eingeschränkt (s. Zeichnung).Mittlerweile habe ich mich auch durch die entsprechende Verlegung der SAT-Kabel an diese Aufstellung gebunden.Trotzdem..."» Weiterlesen: Aufstellung Lautsprecher bei Eckcouch
0 Kommentare
Anzeige
Diskussion zum Bild:
Was möchtest du tun?
Rechtlicher Hinweis
Die Verantwortung der hier angezeigten Bilder liegt beim einstellenden Nutzer.
Hifi-Forum macht sich die Inhalte nicht zu eigen und übernimmt keine Verantwortung.