Auszug aus dem Forum:
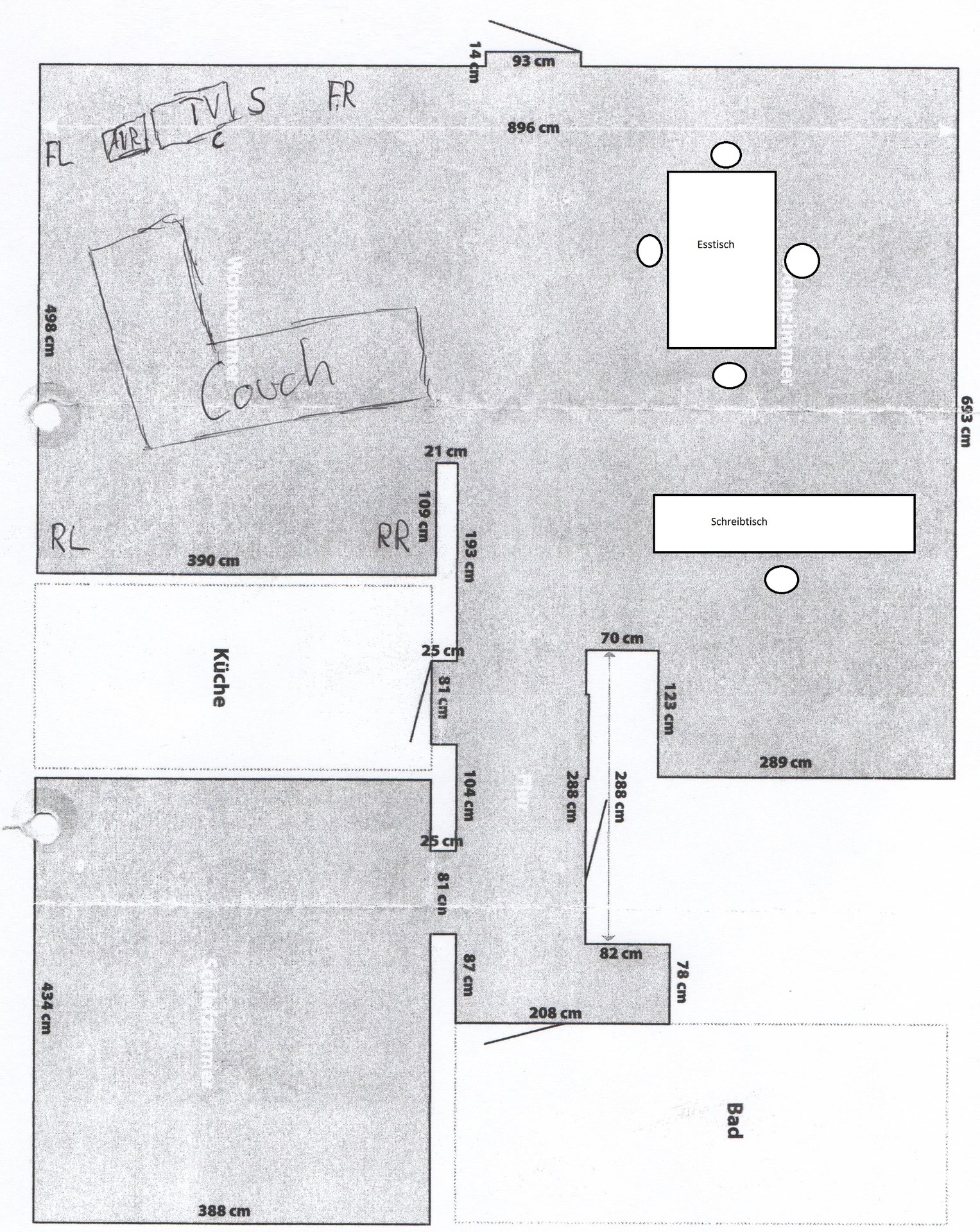
"Hallo zusammen,nachdem meine alte Anlage so langsam den Geist aufgibt Philips fw-c55 und auch ein neuer TV da ist, wird es auch Zeit für ein 5.1 System. Wie einige hier bin ich auch Einsteiger und hab nicht viel Ahnung. Deshalb bitte ich hier um Hilfe/Beratung...."» Weiterlesen: Suche: AVR und 5.1 Anlage für komplizierte Wohnung
0 Kommentare
Anzeige
Diskussion zum Bild:
Was möchtest du tun?
Rechtlicher Hinweis
Die Verantwortung der hier angezeigten Bilder liegt beim einstellenden Nutzer.
Hifi-Forum macht sich die Inhalte nicht zu eigen und übernimmt keine Verantwortung.