Auszug aus dem Forum:
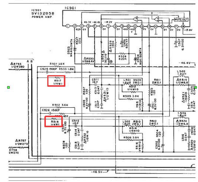
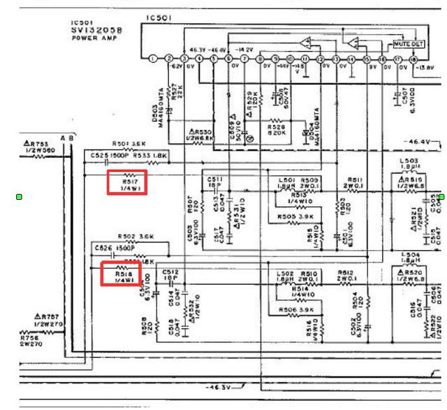
"Der Fehler ist gefunden. Da hatte ich doch glatt 2 Bauteile übersehen. Es waren sprichwörtlich "DIE ALLERLETZTEN 2". Die sind mir komplett durchs "200% Suchraster" gefallen. Ich könnt mich in den A.. beißen. Die beiden Widerstände..."» Weiterlesen: Technics SU-VX620 mit Hybrid defekt!
0 Kommentare
Anzeige
Diskussion zum Bild:
Was möchtest du tun?
Rechtlicher Hinweis
Die Verantwortung der hier angezeigten Bilder liegt beim einstellenden Nutzer.
Hifi-Forum macht sich die Inhalte nicht zu eigen und übernimmt keine Verantwortung.