Auszug aus dem Forum:
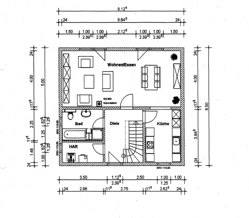
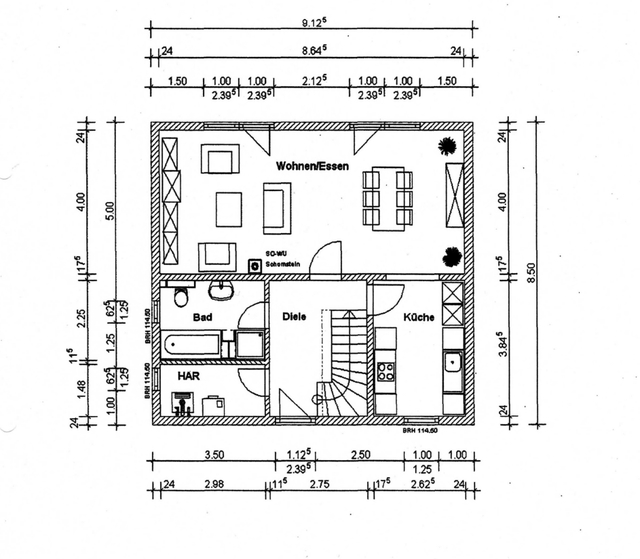
"Hallo Forum,unser Neubau wird zum Jahresende fertig sein, aber es muss schon jetzt viel geplant werden (Steckdosen, Leerrohre etc.). Ich möchte diesen Thread hier nutzen um Fragen zu den einzelnen Komponenten zu stellen, sowie auch bauliche. Nachbarn..."» Weiterlesen: Wz-"Heimkino"für unseren Neubau gesucht (5.0 +AVR =ca. 1500-1800€) Grundriss
0 Kommentare
Anzeige
Diskussion zum Bild:
Was möchtest du tun?
Rechtlicher Hinweis
Die Verantwortung der hier angezeigten Bilder liegt beim einstellenden Nutzer.
Hifi-Forum macht sich die Inhalte nicht zu eigen und übernimmt keine Verantwortung.