Auszug aus dem Forum:
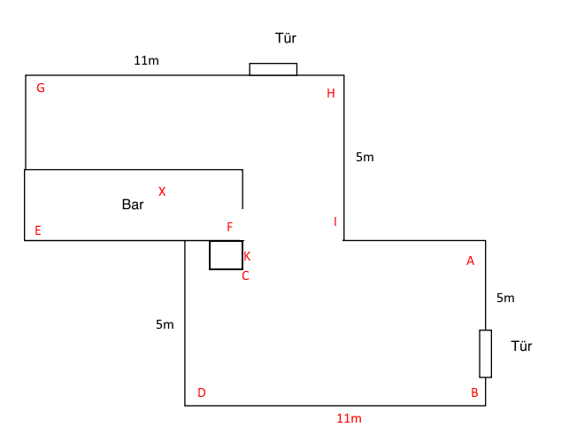
"Hallo zusammen,ein Freund von mir plant gerade eine Anlage für Ihr Vereins-/Clubheim. 784199Deckenhöhe 3mGesucht wird wie immer die eierlegende Wollmilchsau - eine Anlage die gut klingt, sich für Geburtstagspartys mit Tanz eignet, von der Bar und falls..."» Weiterlesen: PA für Jugendclub / Vereinsheim mit 110 m² 10-50 Leute gesucht
Beschreibung des Autors:
"Grundriss Clubraum mit Bar"
0 Kommentare
Anzeige
Diskussion zum Bild:
Was möchtest du tun?
Rechtlicher Hinweis
Die Verantwortung der hier angezeigten Bilder liegt beim einstellenden Nutzer.
Hifi-Forum macht sich die Inhalte nicht zu eigen und übernimmt keine Verantwortung.