Auszug aus dem Forum:
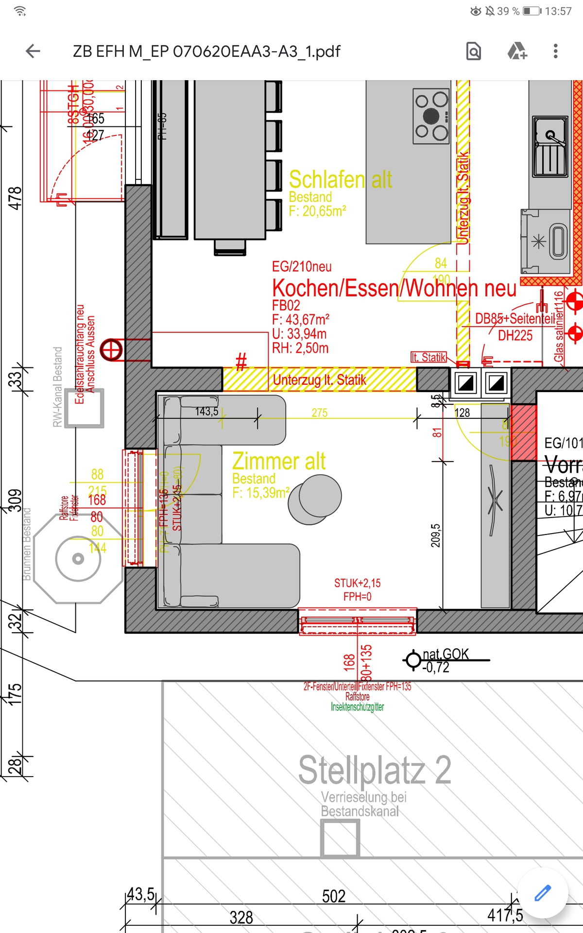
"Hallo hier die Skizze, Zimmer alt wird der Wohnbereich. 1030467Auf der linken Seite vom Sofa, ist keine Mauer vorhanden so wie es auf dem Plan noch sichtbar ist. Dort wird ein Kamin gebaut. Und das Sofa wird auch nicht so aussehen wie auf dem Plan sondern..."» Weiterlesen: Hilfe beim Rear Bereich
0 Kommentare
Anzeige
Diskussion zum Bild:
Was möchtest du tun?
Rechtlicher Hinweis
Die Verantwortung der hier angezeigten Bilder liegt beim einstellenden Nutzer.
Hifi-Forum macht sich die Inhalte nicht zu eigen und übernimmt keine Verantwortung.