Auszug aus dem Forum:
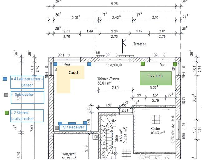
"Wir sind gerade im Rohbau und planen derzeit die Elektroinstallation. Bisher haben wir beim Musikgenuss einfachste Technik verwendet (AIWA Microanlage, TV-Ton direkt aus TV), möchten aber im Haus "ordentliche" Technik einplanen.Was ich mir vorstelle:>..."» Weiterlesen: Planung HIFI beim Hausbau
0 Kommentare
Anzeige
Diskussion zum Bild:
Was möchtest du tun?
Rechtlicher Hinweis
Die Verantwortung der hier angezeigten Bilder liegt beim einstellenden Nutzer.
Hifi-Forum macht sich die Inhalte nicht zu eigen und übernimmt keine Verantwortung.