Auszug aus dem Forum:
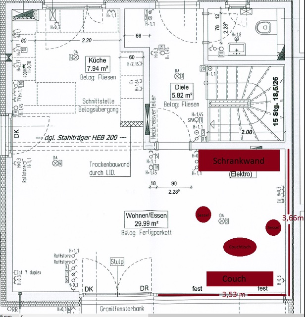
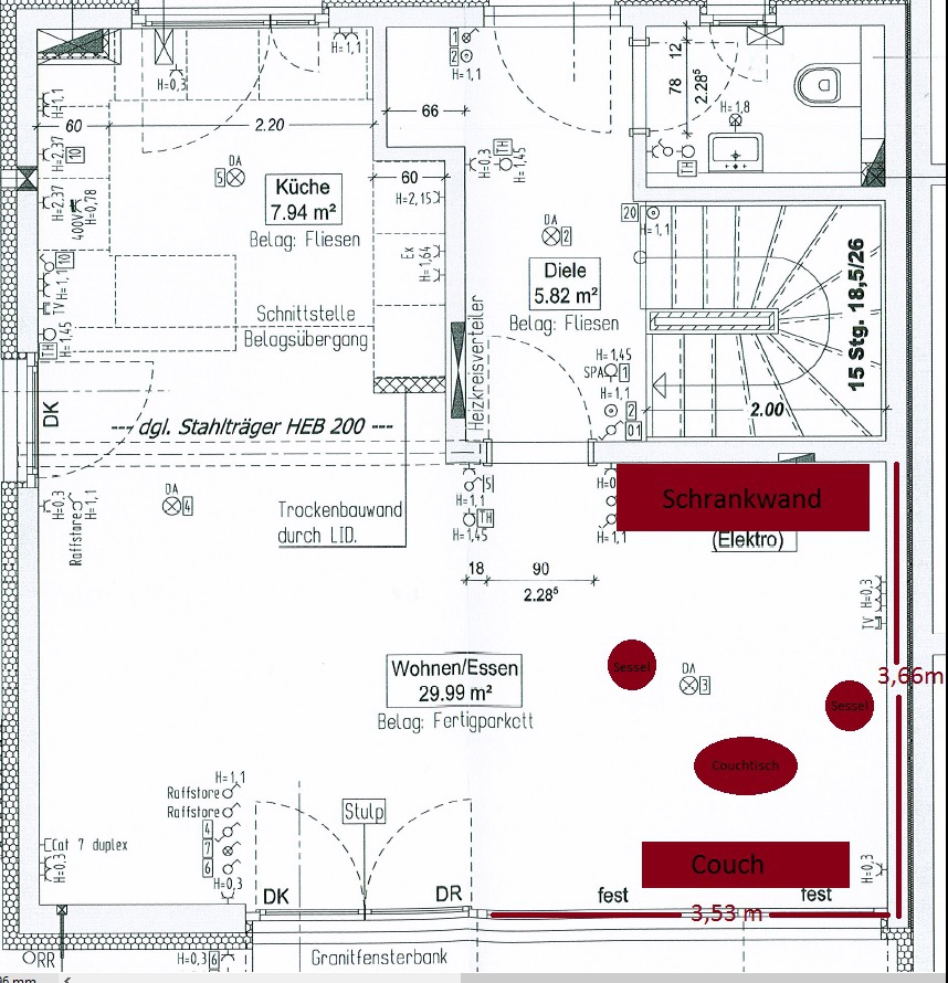
"Na da waren doch schon sehr viele super Tipps dabei - vielen vielen Dank dafür.Ich habe euch mal einen Plan und ein Foto unserem Wohnzimmer angehängt - sieht halt zur Zeit sehr weihnachtlich aus - normal steht die Couch etwas weiter an der Wand (da wo jetzt..."» Weiterlesen: Kaufunterstützung
0 Kommentare
Anzeige
Diskussion zum Bild:
Was möchtest du tun?
Rechtlicher Hinweis
Die Verantwortung der hier angezeigten Bilder liegt beim einstellenden Nutzer.
Hifi-Forum macht sich die Inhalte nicht zu eigen und übernimmt keine Verantwortung.