| HIFI-FORUM » Do it yourself » Lautsprecher » PA Box Selbstbau | |
|
|
||||
PA Box Selbstbau+A -A |
||
| Autor |
| |
|
BrOtY
Hat sich gelöscht |
#1
erstellt: 27. Jul 2005, 22:30
|
|
|
HAllo! ich wollte mAl frAgen wie es so mit den beiden bAuvorschlägen geht!(tolles deutsch Aber egAl) für Tieftöner Eminence Sigma Pro-18 1: http://geist4711.no-ip.com/exhorn.png http://geist4711.no-ip.com/exhorn2.png http://geist4711.no-ip.com/exhorn3.png2: http://www.lautsprechershop.de/pa/images/pa_18sub.gifBitte Pro contrA und gegenüberstellung wenns geht! Andere bAuvorschläge nähme ich gerne An! |
||
|
Hifi_panzer3000
Ist häufiger hier |
#2
erstellt: 27. Jul 2005, 23:10
|
|
|
kontra: Tu es nicht!! Den Strassacker-Sub mit dem Sigma pro ist nur zum zerschrotten gut. Jeder wird dir sagen und hat mir gesagt, dass du mit einem arls deutlich besser dran bist. habe gerade einen gebaut. bilder füg ich gleich noch hinzu. zudem kriegst du das ganze auch noch n tacken günstiger. ich empfehle arls - wird mit kappa 15lf bestückt, 84eur. pro: weiß nichts - sieht groß aus ;-) |
||
|
|
||
|
BrOtY
Hat sich gelöscht |
#3
erstellt: 28. Jul 2005, 22:50
|
|
|
und was für ein gehäuse dafür`? schlacht was vor! |
||
|
pinkmushroom
Inventar |
#4
erstellt: 28. Jul 2005, 22:59
|
|
|
arls ist das gehäuse^^ sigma pro ist eigentlich ein infra und macht ohne umständliche entzerrung ab 60hz problemchen, laut bolandi @hifi_panzer3000 schneller die bilder |
||
|
BrOtY
Hat sich gelöscht |
#5
erstellt: 28. Jul 2005, 23:15
|
|
|
Kann hier mal einer n link zum arls posten?`oder so in der art? |
||
|
Hifi_panzer3000
Ist häufiger hier |
#6
erstellt: 28. Jul 2005, 23:32
|
|
|
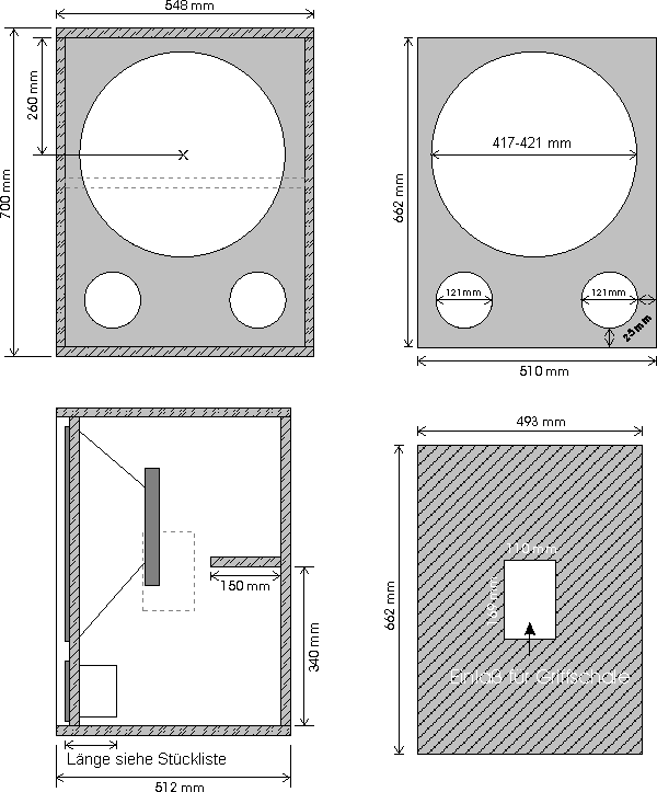
also also. hier erstmal ein bild. wird natürlich noch lackiert und unten kommen noch schutzecken dran. das gehäuse ist der "arls" und betrieben wird er mit kappa 15lf. hier der plan: http://www.aw-audio.kaigerner.de/subs/15arls.jpgund hier meiner: ![]() |
||
|
Hifi_panzer3000
Ist häufiger hier |
#7
erstellt: 28. Jul 2005, 23:36
|
|
|
knikknak
Ist häufiger hier |
#8
erstellt: 29. Jul 2005, 02:00
|
|
|
Hallo Hifi_panzer3000, wo holst du den diese perforierte platten her. Ich habe mich ja selber eine box gebaut fuhr meine bassgitarre. Hier in Holland finde ich diese nirgendwo (oder sie sind sehr teuer) |
||
|
Hifi_panzer3000
Ist häufiger hier |
#9
erstellt: 29. Jul 2005, 02:31
|
|
|
hm? wie meinste das jetzt? der noch nicht lackierte ist aus osb-18mm vom holzhandel--- (wird morgen lackiert ... stelle dann mal fotos rein, wie er dann aussieht mit osb.... ich finds gut ) die lackierten sind aus mdf-platten 19mm auch vom holzhandel. dann ist das einfach mit stink normal lackiert.... |
||
|
knikknak
Ist häufiger hier |
#10
erstellt: 29. Jul 2005, 03:03
|
|
|
Hey Panzer, mein deutsch ist ja nicht super aber mit diese perforierte platten meine ich die gitter (oder ist das foto mit die schwartz lackierte boxen nicht von dir?) |
||
|
Hifi_panzer3000
Ist häufiger hier |
#11
erstellt: 29. Jul 2005, 12:37
|
|
|
nein, die ist nicht von mir. von nem bekannten. das foto sollte dazu dienen, wies aussehen kann diese platten kann man sich im internet individuell stanzen lassen. die genaue adresse post ich nachher .... fällt mir gerade nich ein *blackout* |
||
|
*dahod*
Ist häufiger hier |
#12
erstellt: 29. Jul 2005, 16:33
|
|
|
also, wenn es um "perforierte Platten" geht, kann ich nur empfehlen, mal in den Abfallkisten diverser Firmen zu schauen. So mancher Eisenwarenhandel o.Ä. hat sicherlich Abfälle, die sich zusammenschneidern lassen. Gruß daniel |
||
|
BrOtY
Hat sich gelöscht |
#13
erstellt: 29. Jul 2005, 18:40
|
|
|
Dein bekanter hat aber echt geile steckdosen!erdungskabel sucht man da vergebens....naja egal was würdet ihr mir als topteil empfehlen? natürlich preisklasse n bissl down bleiben! |
||
|
Hifi_panzer3000
Ist häufiger hier |
#14
erstellt: 29. Jul 2005, 19:00
|
|
|
es geht um den arls, nicht um die steckdose ;-) also als top würde ich die ps12 empfehlen. ist für einander gedacht. also arls kommste so auf 120 eur (wenn du günstig baust) und ps12 so 230 eur .... |
||
| ||
|
|
||||
| Das könnte Dich auch interessieren: |
|
Geist4711 mikhita am 17.04.2005 – Letzte Antwort am 18.04.2005 – 5 Beiträge |
|
Gehäusetausch/No Budget Projekt mariv069 am 07.10.2010 – Letzte Antwort am 07.10.2010 – 2 Beiträge |
|
BG20-BigBlock (geist4711) mit Monacor-Piezo - eine Offenbarung! JohnD am 11.05.2010 – Letzte Antwort am 10.01.2015 – 43 Beiträge |
|
Hilfe gesucht bei PA-Selbstbau kleinerflorian am 11.03.2007 – Letzte Antwort am 11.08.2007 – 11 Beiträge |
|
Projekt No.2 D-ice am 30.06.2006 – Letzte Antwort am 09.01.2007 – 21 Beiträge |
|
Brauche Hilfe bei Pa-Box 5-er am 12.02.2006 – Letzte Antwort am 12.02.2006 – 4 Beiträge |
|
PA Selbstbau? Fabsgedio am 04.02.2013 – Letzte Antwort am 07.02.2013 – 18 Beiträge |
|
Bauvorschlag für Pa Boxen Pa_Boxen am 06.12.2005 – Letzte Antwort am 10.12.2005 – 10 Beiträge |
|
PA Boxen für Free Party thomas24_26 am 13.01.2012 – Letzte Antwort am 14.01.2012 – 3 Beiträge |
|
Selbstbau : Akkubetriebene PA Box GandalfTheHunter am 06.08.2019 – Letzte Antwort am 06.08.2019 – 4 Beiträge |
Foren Archiv
2005
Anzeige
Produkte in diesem Thread
Aktuelle Aktion
Top 10 Threads der letzten 7 Tage
- Hotel Modus deaktivieren
- "diese anwendung wird jetzt neu gestartet um mehr speicherplatz verfügbar zu machen"
- Von HD+ zurück zu Standard-TV
- Remotekabel anschließen, aber wie und wo?
- Hisense verbindet sich nicht mehr mit dem WLAN
- Audiodeskription ausschalten (in ZDF App) 803er
- Umschalten von TV auf Radio
- Satellitenschüssel was und wie einstellen am TV
- Pro 7 und Sat 1 auf einmal weg.
- Markierung an Lautsprecherkabel - welche Norm?
Top 10 Threads der letzten 50 Tage
- Hotel Modus deaktivieren
- "diese anwendung wird jetzt neu gestartet um mehr speicherplatz verfügbar zu machen"
- Von HD+ zurück zu Standard-TV
- Remotekabel anschließen, aber wie und wo?
- Hisense verbindet sich nicht mehr mit dem WLAN
- Audiodeskription ausschalten (in ZDF App) 803er
- Umschalten von TV auf Radio
- Satellitenschüssel was und wie einstellen am TV
- Pro 7 und Sat 1 auf einmal weg.
- Markierung an Lautsprecherkabel - welche Norm?
Top 10 Suchanfragen
Forumsstatistik
- Registrierte Mitglieder931.061 ( Heute: 2 )
- Neuestes MitgliedMichaelAmina
- Gesamtzahl an Themen1.564.572
- Gesamtzahl an Beiträgen21.858.454


) 







